Let
Property Icon
£ 3,400/pcm
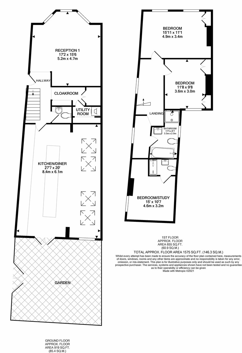
Lyndhurst Way
3 Bedrooms Semi-Detached House

Description

FAMILY OR COUPLE ONLY PLEASE. Immaculately presented three bedroom Victorian end of terrace family home. Perfectly situated for the amenities and transport links of Peckham & Bellenden Village. The ground floor is renovated to a high standard, it has an extended kitchen diner with integrated appliances, separate reception room and cloakroom with plenty of clever storage solutions. Upstairs are three ample bedrooms and a family bathroom. The pretty back garden make this a perfect home for a family.

Contact Agent

Urban Village Homes Limited
121 Denmark Hill
Camberwell
London
SE5 8EN
United Kingdom
Tel: 020 3519 9121
info@urbanvillagehomes.com

Property Features

  • Three bedrooms
  • Large modern kitchen
  • High spec
  • Large family bathroom
  • FAMILY OR COUPLE ONLY PLEASE
  • Private garden
  • Excellent schools
  • Local Amenities
  • Good transport links
  • Local parks and green spaces

Documents & Resources

Arrange a Viewing