Let
Property Icon
£ 1,425/pcm
Grovelands Close, London
1 Bedrooms Apartment

Description

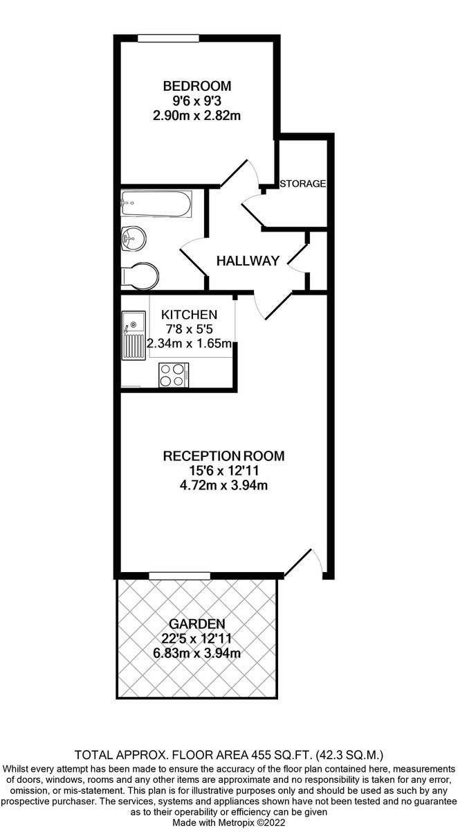
One double bedroom apartment with private front garden, very close to Denmark Hill Station and Kings College Hospital. Available to rent, in the popular Groveland's Close development, off of Camberwell Grove, allowing excellent access to shops, bars, restaurants and transport. Available unfurnished from 05/07/2025. Would suit a single occupant or professional couple.

Contact Agent

Urban Village Homes Limited
121 Denmark Hill
Camberwell
London
SE5 8EN
United Kingdom
Tel: 020 3519 9121
info@urbanvillagehomes.com

Property Features

  • One double bedroom
  • Ground floor
  • Private front garden
  • Quiet development
  • Kings College Hospital
  • Denmark Hill Station
  • Local amenities
  • Off Camberwell Grove
  • Ruskin Park
  • Unfurnished

Documents & Resources

Arrange a Viewing