Sold
Property Icon
£ 500,000
Champion Hill, London
2 Bedrooms Apartment

Description

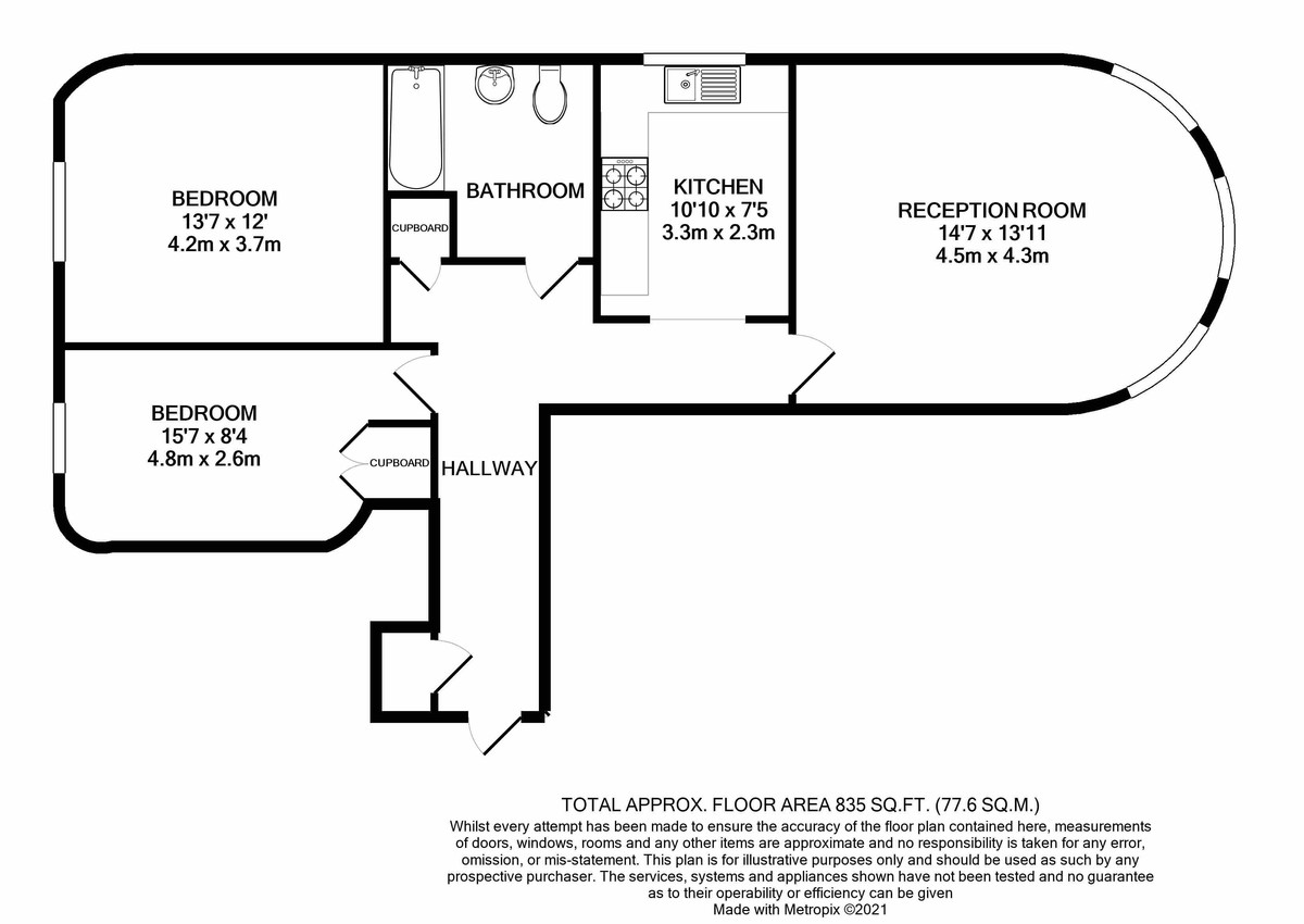
A beautiful two double bedroom apartment on the top floor of Ruskin Park House. A uniquely positioned, triple aspect flat which has panoramic city views and the largest of the two beds in the development. The living room benefits from plenty of natural light from the large south facing bay windows. There is a modern kitchen with integrated appliances and a family bathroom. parking spaces, garages and storage units are available to rent onsite.. Easy walking distance to Denmark Hill Station, King’s College Hospital and Ruskin Park. Close to Herne Hill with its village market and lively Peckham and Brixton. Share of freehold company, long lease

Contact Agent

Urban Village Homes Limited
121 Denmark Hill
Camberwell
London
SE5 8EN
United Kingdom
Tel: 020 3519 9121
info@urbanvillagehomes.com

Property Features

  • Two double bedrooms
  • Top floor
  • Great views
  • Modern Kitchen
  • Lifts in the block
  • Long Lease
  • Communal Gardens
  • Ruskin Park
  • Denmark Hill Station
  • Kings College Hospital

Documents & Resources