To Let
Property Icon
£ 3,500/pcm
Mandela Street, London
4 Bedrooms Town House

Description

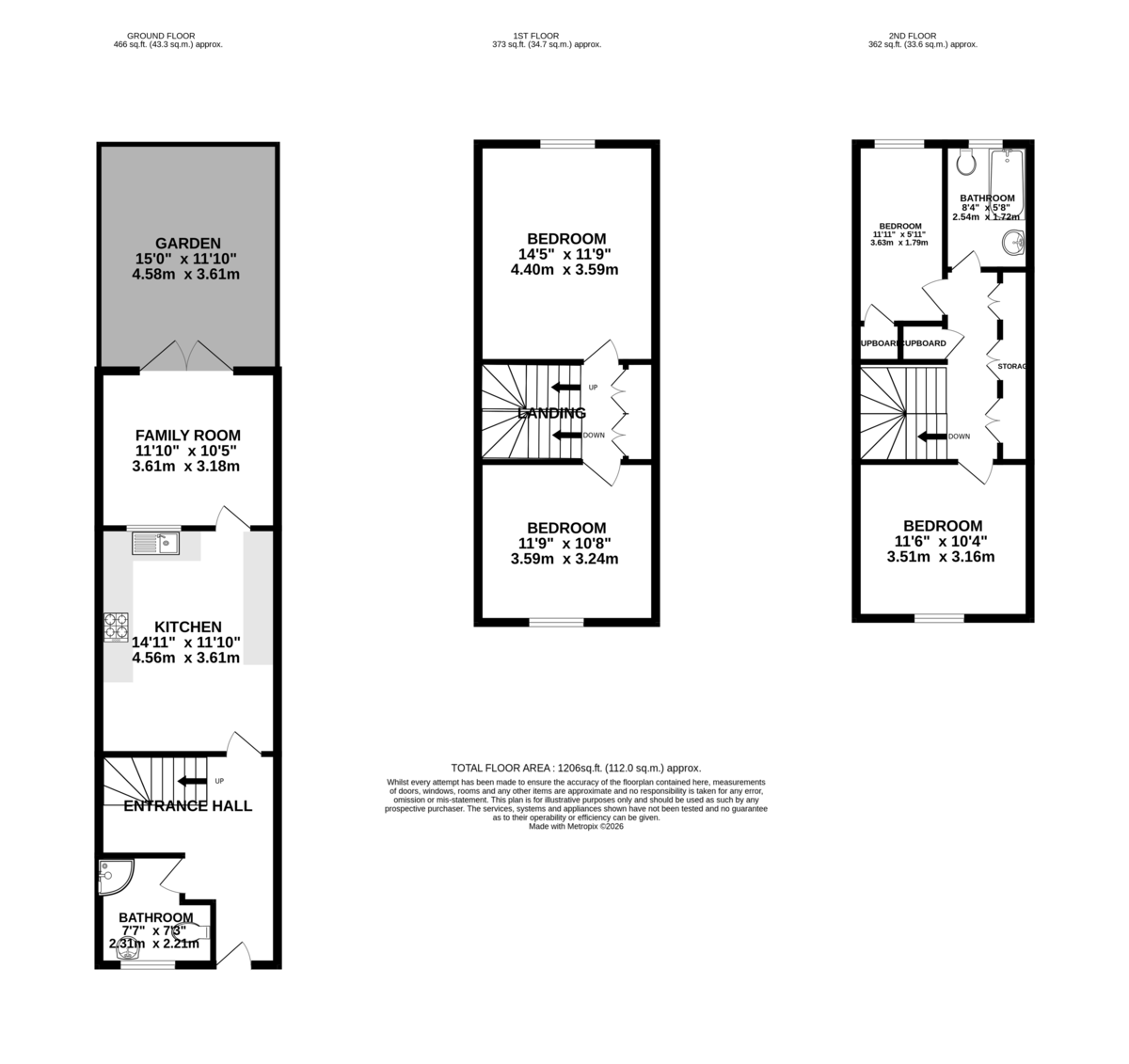
A four double bedroom town house, on the ground floor is a shower room, good sized kitchen / dining room and a separate living room that leads out to a private garden. Split across the first and second floor are four double bedrooms and the family bathroom. Conveniently located in Brixton with excellent restaurants, cafes shops and transport all within easy walking distance. Available immediately.

Contact Agent

Urban Village Homes Limited
121 Denmark Hill
Camberwell
London
SE5 8EN
United Kingdom
Tel: 020 3519 9121
info@urbanvillagehomes.com

Property Features

  • Four double bedrooms
  • Two bathrooms
  • Private garden
  • Town House
  • Local amenities
  • Brixton tube
  • Brixton Market
  • Stockwell
  • Local buses
  • Available immediately

Documents & Resources

Arrange a Viewing